Denah Model Desain Gambar Rumah Minimalis Idaman Modern Tipe 70

Loading...
Loading...
Rumah merupakan kebutuhan pokok setiap manusia, baik rumah modern ,rumah mewah atau rumah sederhana. Selain, sandang, dan pangan, rumah idaman memiliki nilai yang sangat besar bagi kelangsungan hidup manusia di dunia. Tempat tinggal atau perumahan dengan kualitas yang baik tentunya menjadi hal yang paling diminati oleh setiap manusia karena pentingnya memiliki rumah idaman dengan kualitas yang sangat baik dapat pula menjadikan hidup kita menjadi lebih baik. Oleh sebab itu manusia sering merasa bingung dalam memilih desain rumah minimalis atau rumah modern dan rumah mewah yang merupakan rumah idaman bagi dirinya. Kebingungan tersebut bisa berawal dari desain desain rumah modern atau rumah sederhana yang cocok seperti apa, selain itu harga rumah modern atau rumah sederhana yang sesuai juga menambah pusing pikiran para pembeli rumah.
Definisi rumah idaman setiap orang berbeda-beda. Ada diantara kita yang mendefinisikan rumah idaman sebagai rumah mewah dan besar yang dilengkapi dengan fasilitas-fasilitas mahal dan furnitur yang megah. Namun ada pula yang mendefinisikan rumah idaman sebagai rumah sederhana yang asri, bagian halaman rumah dipenuhi oleh tanaman-tanaman hijau, furniture minimalis, dan sebagainya. Dengan demikian , rumah idaman memiliki kriteria yang berbeda-beda tergantung dari selera penghuninya. Walaupun selera orang tidak sama, ada beberapa hal yang membuat sebuah tempat tinggal bisa disebut sebagai rumah idaman atau rumah minimalis.

Kriteria Rumah Sederhana :
  1. Rumah yang ideal lengkap dengan beberapa interior ruangan yang penting. Seperti ruang tamu, dapur, kamar tidur dan kamar mandi.
  2. Tata letak rumah di desain dengan baik.
  3. Dekorasi ruangan yang serasi.
  4. Kebersihan rumah yang terjaga.
  5. Sirkulasi udara dan pencahayaan yang baik.
  6. Adanya taman rumah.
Jenis Jenis Tipe Rumah :
  1. Rumah Minimalis Tipe 36
  2. Rumah Minimalis Tipe 45
  3. Rumah Minimalis Tipe 54
  4. Rumah Minimalis Tipe 60
  5. Rumah Minimalis Tipe 70
  6. Rumah Minimalis Tipe 80
  7. Rumah Minimalis Tipe 100

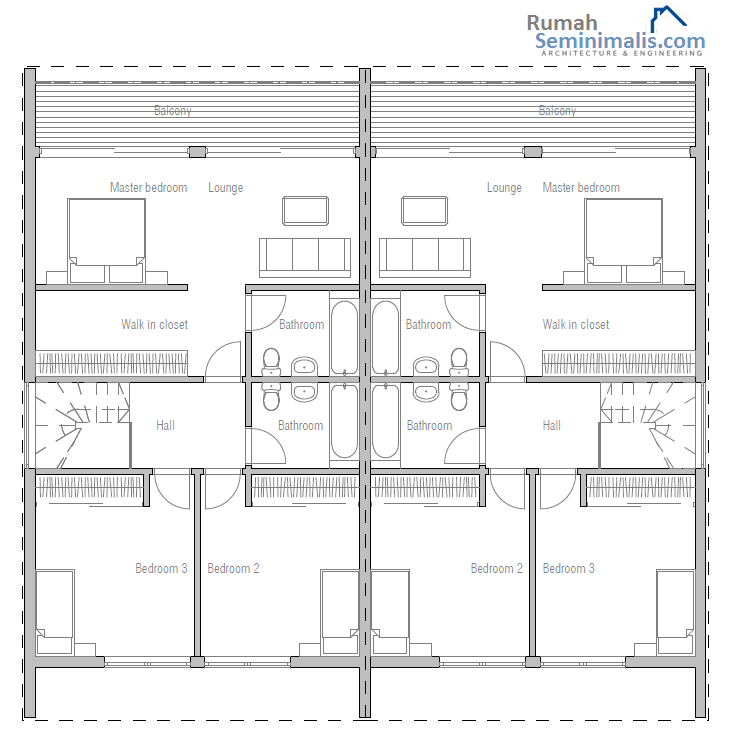
Desain Rumah Minimalis Modern Tipe 70

Saat ini ada berbagai macam desain rumah minimalis yang bisa dipilih untuk menciptakan rumah yang di impikan. Ada tiga macam model rumah yang populer diantaranya, desain rumah minimalis, rumah sederhana dan rumah mewah. Ketiga desain tersebut mempunyai ciri sendiri-sendiri, sehingga Anda dapat memilih desain yang sesuai dengan selera dan kemampuan Anda.
saat ini akan memberikan desain rumah minimalis modern tipe 70.

Denah Model Desain Gambar Rumah Minimalis Idaman Modern Tipe 70
Denah Model Desain Gambar Rumah Minimalis Idaman Modern Tipe 70 1
Denah Model Desain Gambar Rumah Minimalis Idaman Modern Tipe 70
Denah Model Desain Gambar Rumah Minimalis Idaman Modern Tipe 70 2

Denah Model Desain Gambar Rumah Minimalis Idaman Modern Tipe 70
Denah Model Desain Gambar Rumah Minimalis Idaman Modern Tipe 70 3

Denah Model Desain Gambar Rumah Minimalis Idaman Modern Tipe 70
Denah Model Desain Gambar Rumah Minimalis Idaman Modern Tipe 70 4

Denah Model Desain Gambar Rumah Minimalis Idaman Modern Tipe 70
Denah Model Desain Gambar Rumah Minimalis Idaman Modern Tipe 70 5

Denah Model Desain Gambar Rumah Minimalis Idaman Modern Tipe 70
Denah Model Desain Gambar Rumah Minimalis Idaman Modern Tipe 70 6

Denah Model Desain Gambar Rumah Minimalis Idaman Modern Tipe 70
Denah Model Desain Gambar Rumah Minimalis Idaman Modern Tipe 70 7

Denah Model Desain Gambar Rumah Minimalis Idaman Modern Tipe 70
Denah Model Desain Gambar Rumah Minimalis Idaman Modern Tipe 70 8
Semoga Denah Model Desain Gambar Rumah Minimalis Idaman Modern Tipe 70 di atas Bermanfaat.

Loading...

0 Response to "Denah Model Desain Gambar Rumah Minimalis Idaman Modern Tipe 70"

Post a Comment

Iklan Atas Artikel

Iklan Tengah Artikel 1

Iklan Tengah Artikel 2

Iklan Bawah Artikel